| Status | Conceptual |
| Year | 2019 |
| Discipline | Architecture Sustainability Conservation |
| Themes | Revitalisation Urbanism Post-industrial reuse Health |
| Software | Archicad Adobe (PS, AI, Indesign) |
Related Projects


The Govan Hydro
The ‘Fallen Church’ rises anew. Envisioned as a concert hall for the inhabitants of Grottole and beyond, the proposal aims to replenish the landmark’s long-standing relationship with its surrounding landscape, its role as a congregation place and enhance its symbolic identity. Drawing inspiration from the location’s geographical morphology and the church’s idiomatic architectural aspects – its fragmentation, permeability, visual connections – the design unravels as a collection of communal, open spaces that promote collective artistic expression. The spaces welcome live music performances, as well as conferences, exhibitions, movies andperformance arts. Their flexibility ensures spatial future repurposing to cater for the needs of tomorrow’s communities.




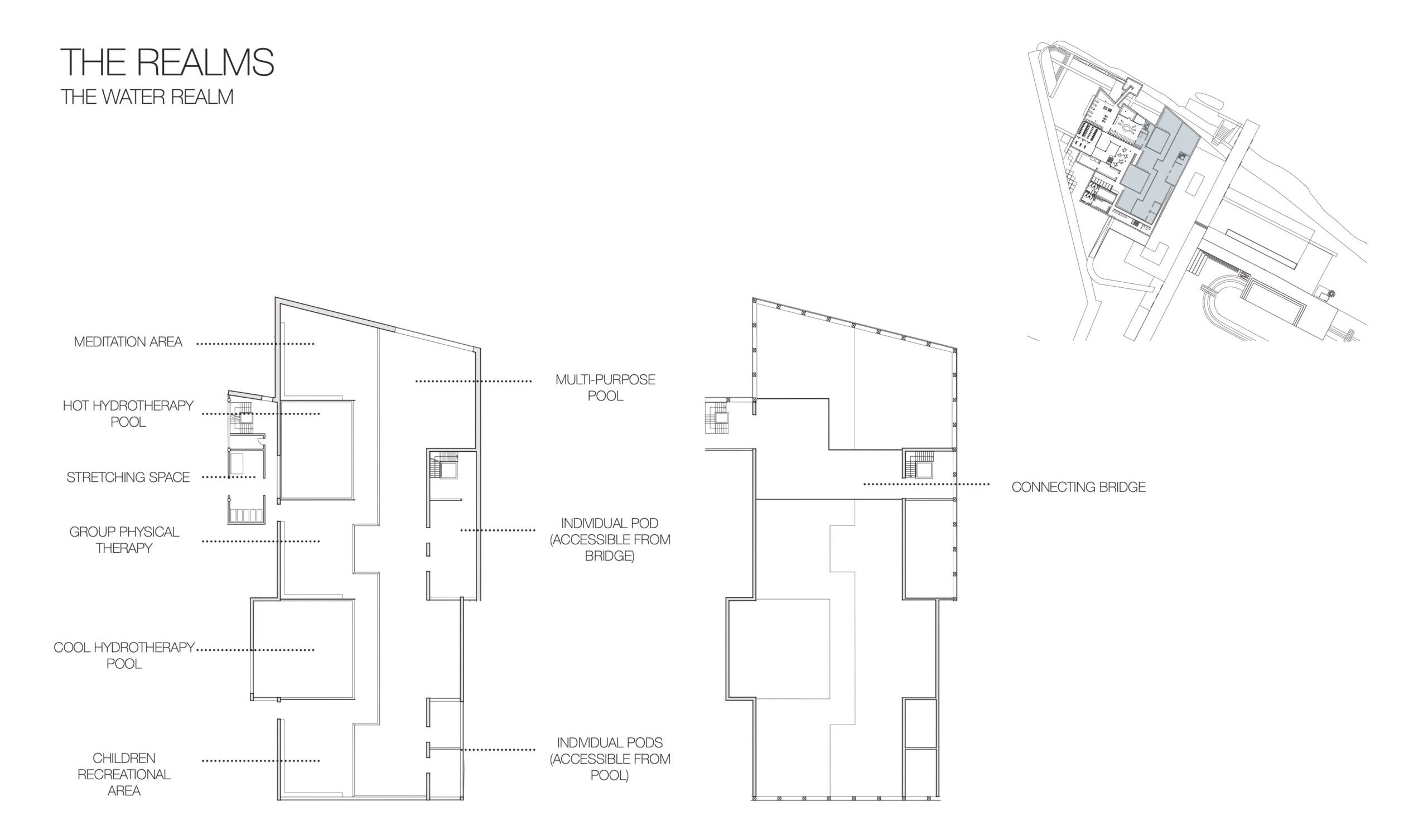
The Realms – The Water Realm
The Water Realm is a versatile environment, featuring areas for physical and mental exercises both in and out of the water. It includes specialized zones for therapeutic treatments tailored to specific health conditions, as well as interactive play areas for children. The design ensures that these various functions coexist harmoniously within a single, fluid space.
By creating an environment where diverse activities blend naturally, the Water Realm fosters a sense of community and highlights the importance of collective well-being. This innovative approach transforms health and wellness into a shared public experience, moving beyond the confines of private, individual treatments.
The Water Realm is more than an amenity; it’s a sophisticated space that redefines wellness architecture. It embodies a holistic approach to health, where design and functionality come together to create a unified, community-focused experience.







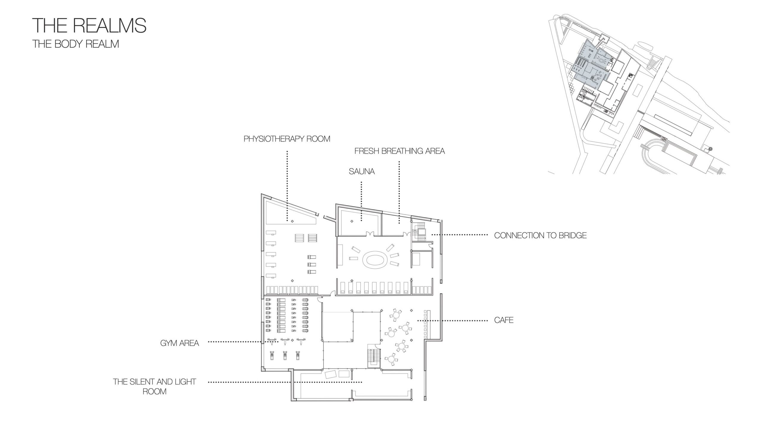
The Realms – The Body Realm
The Water Realm is a versatile environment, featuring areas for physical and mental exercises both in and out of the water. It includes specialized zones for therapeutic treatments tailored to specific health conditions, as well as interactive play areas for children. The design ensures that these various functions coexist harmoniously within a single, fluid space.
By creating an environment where diverse activities blend naturally, the Water Realm fosters a sense of community and highlights the importance of collective well-being. This innovative approach transforms health and wellness into a shared public experience, moving beyond the confines of private, individual treatments.
The Water Realm is more than an amenity; it’s a sophisticated space that redefines wellness architecture. It embodies a holistic approach to health, where design and functionality come together to create a unified, community-focused experience.





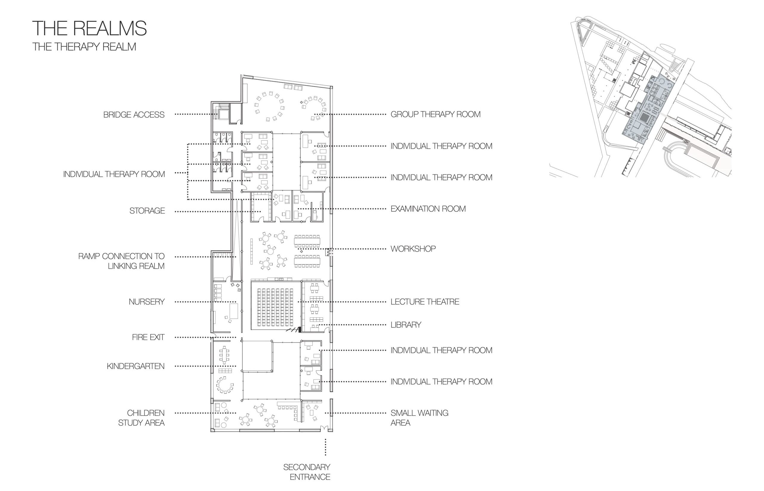
The Realms – The Mental & Education Realm
The Water Realm is a versatile environment, featuring areas for physical and mental exercises both in and out of the water. It includes specialized zones for therapeutic treatments tailored to specific health conditions, as well as interactive play areas for children. The design ensures that these various functions coexist harmoniously within a single, fluid space.
By creating an environment where diverse activities blend naturally, the Water Realm fosters a sense of community and highlights the importance of collective well-being. This innovative approach transforms health and wellness into a shared public experience, moving beyond the confines of private, individual treatments.
The Water Realm is more than an amenity; it’s a sophisticated space that redefines wellness architecture. It embodies a holistic approach to health, where design and functionality come together to create a unified, community-focused experience.























